If you are looking for an affordable resort property with a modern design and a well-thought-out layout, this project is the perfect choice.
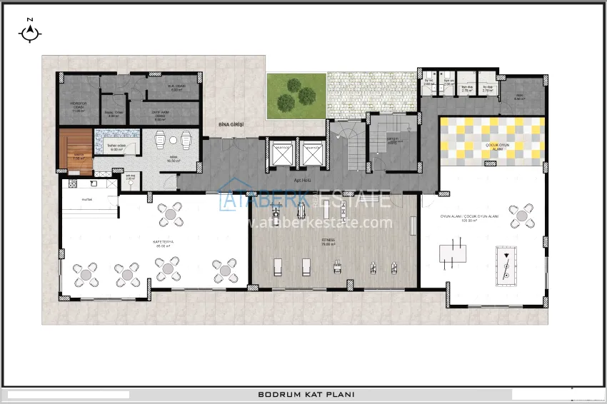
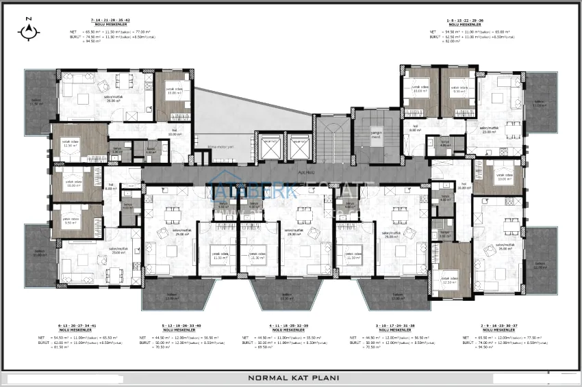
The complex combines convenient location, comfortable apartments and flexible purchase conditions, which makes it attractive for both personal living and renting. It is being built on a plot of 2.956 m² and consists of one block with underground, basement, six residential floors and an attic roof. The project has a total of 49 apartments. The complex will provide a variety of infrastructure, including recreation areas, playgrounds, swimming pools and other amenities that provide full comfort for residents and visitors.
We offer apartments of various layouts: 1+1 with an area of 55.5 and 56.5 m², 2+1 from 65 to 77.5 m², as well as 2+1 and 3+1 duplexes with an area of 105.5-131.5 m². All apartments will be fully finished, equipped with built-in kitchen furniture and fully equipped bathrooms with high-quality plumbing. Balconies and terraces, air conditioning and panoramic facades (south, east, north and west orientation) add space and comfort.
One of the key advantages is a flexible payment system: interest-free installments until the end of construction with a down payment of only 10% and up to 48 months. This allows you to buy an apartment without unnecessarily burdening the budget and plan payments as conveniently as possible.
Avsallar is one of the most popular resort areas in Alanya, with well-maintained beaches, green areas and well-developed infrastructure. The area is suitable for permanent residence, recreation and investment: it maintains a stable demand for real estate, and transport accessibility and the availability of necessary urban services make life convenient and comfortable.
Our team will help you understand all the details, complete the deal safely and comfortably, and choose a property that is ideally suited to your goals — for living or investing.

























