In the complex during the construction phase, directly from the owner, two-level apartments are offered for sale at a very affordable price!
In the resort area of Alanya - Mahmutlar, a new modern comfort-class residential complex is being built, combining high quality construction and modern elegant design, with a self-sufficient internal infrastructure and a very convenient location - some distance from the noisy central streets of the area, on a hill, surrounded magical nature with clean mountain air. The Mediterranean coast is 1 km away.
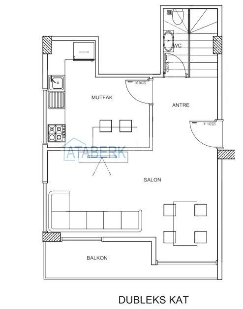
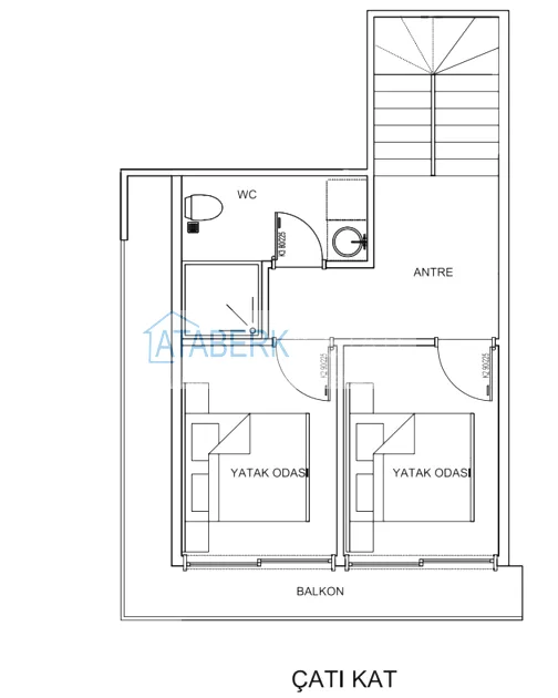
The project is being implemented on a plot of 3325 m2 and will consist of one 12-storey building and a landscaped adjacent private area. The offered property is located on the top two floors (11-12), oriented to 3 cardinal directions - south, north, west, layout 2 + 1, area is 105 m2. This layout includes: 2 bedrooms, living room, American style kitchen, 2 bathrooms and 2 balconies. The price of the apartment includes: full fine finishing, American style interior doors, uPVC double glazing, granite flooring, kitchen cabinets, granite countertops, fully equipped bathrooms with quality sanitary ware, as well as a central satellite TV system and internet.
Mahmutlar is a coastal, rapidly developing, self-sufficient resort area of Alanya, independent of the center. Today, here you can buy everything you need for life and even more.
More detailed and detailed information about this offer is available from our consultants!




















